


















Sylt
Exklusives Wohnen auf Sylt! Luxuriöse Doppelhaushälfte in Archsum zur Miete
- Objektart
- Doppelhaushälfte
- Baujahr
- 2023
- Grundstück
- 650 m²
- Wohnfläche
- 188 m²
- Zimmer
- 4
- Badezimmer
- 2
- Energieausweis
- A+ · 17,32 kWh/(m²·a)
- Miete
- 7.500 €
Das Objekt
Dieses exklusive Doppelhaus unter Reet wurde im Jahr 2023 gebaut. Bei der Planung und Realisierung wurde großer Wert darauf gelegt, traditionelle Eleganz mit moderner Wohnkultur zu verbinden, um höchsten Ansprüchen an Komfort und Privatsphäre gerecht zu werden. Die hier angebotene rechte Doppelhaushälfte verfügt über eine private Grundstücksfläche von ca. 650 m². Dank der geschickten Positionierung der Immobilie entstehen zwei charmante Gartenbereiche:
Der Vorgartenbereich besticht durch eine großzügige Südterrasse, die sich unmittelbar am Objekt befindet. Sie eignet sich ideal für repräsentative Anlässe oder kann optimal zum Essen und Grillen mit der ganzen Familie genutzt werden. Zusätzlich fügt sich ein liebevoll gestalteter, begrünter Gartenbereich harmonisch in die Umgebung ein. Jede Einheit verfügt über zwei hochwertig gepflasterte Pkw-Stellplätze mit ELadestation, die sich vor dem Objekt befinden. Von hier aus führt ein beleuchteter Weg zum repräsentativen Eingangsbereich, der seitlich oder rückwärtig des Gebäudes liegt.
Der geschützte Hintergarten beeindruckt mit einer großzügigen Rasenfläche und einer weiteren Sonnenterrasse, die ein Höchstmaß an Privatsphäre bietet und zum Entspannen einlädt. Die charmant bepflanzten Friesenwälle sowie die liebevoll angelegte Begrünung schaffen eine natürliche Abgrenzung und unterstreichen die harmonische Einbindung in die Umgebung.
Beheizt wird diese exklusive Immobilie durch eine moderne Wärmepumpe in Verbindung mit einer kontrollierten Be- und Entlüftungsanlage, die nachhaltige Energieeffizienz mit zeitgemäßem Wohnkomfort vereint.
Diese außergewöhnliche Immobilie bietet anspruchsvollen Mietern ein Refugium, das Exklusivität, Komfort und durchdachte Gestaltung in perfekter Weise vereint. Hier wird Wohnen zu einem Erlebnis der besonderen Art.
Hinweis: Die Möblierung in den Grundrissen entspricht einem Vorschlag des Architekten. Tatsächlich sind die Häuser wie auf den Fotos erkennbar ausgestattet.
Die Ausstattung
Diese stilvolle Doppelhaushälfte mit einer Wohnfläche von ca. 188 m² (Sylter Maß) überzeugt durch ihre hochwertige Ausstattung, durchdachte Raumaufteilung und stilvollen Details.
Im Erdgeschoss empfängt Sie eine großzügige Diele, die zugleich als Essbereich genutzt werden kann. Von hier aus gelangen Sie in die hochwertige Küche mit separatem Zugang sowie in das gut geschnittene Wohnzimmer, das durch den direkten Zugang zur Terrasse besticht. Eine Garderobe und ein Gäste-WC komplettieren diesen Bereich.
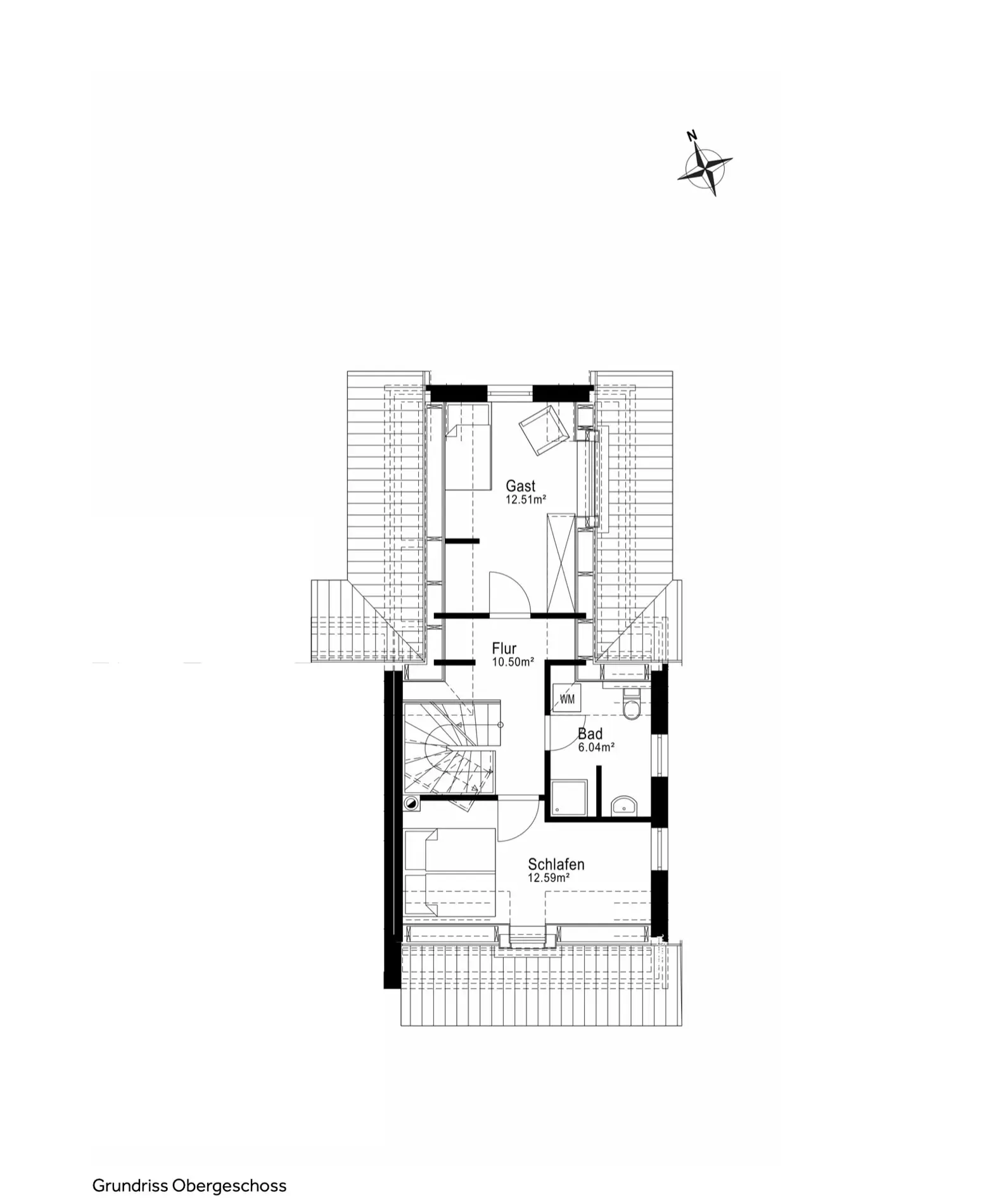
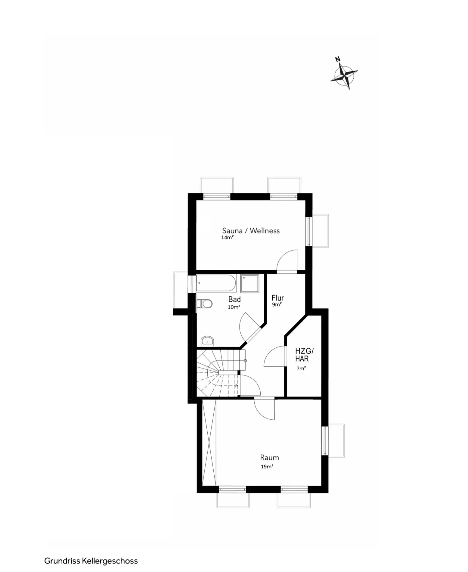
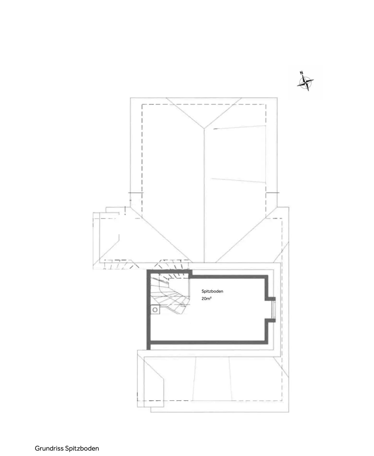
Im Dachgeschoss befinden sich zwei großzügige Schlafzimmer sowie ein exklusives Duschbad, das mit edlen Materialien wie hochwertigen Bodenplatten und ansprechenden Armaturen ausgestattet ist. Der wohntauglich ausgebaute Keller bietet einen privaten Wellnessbereich mit Sauna, ein zusätzliches Vollbad mit sep. Dusche, einen Hobbyraum sowie einen Abstell- und Heizungsraum. Der Spitzboden schafft zusätzlichen Raum für individuelle Gestaltungsmöglichkeiten, sei es als Arbeitsbereich, Lesezimmer oder Atelier.
Die gesamte Immobilie wurde mit viel Liebe zum Detail gestaltet. Hochwertiger Parkettboden, elegante Fliesen und eine Fußbodenheizung sorgen für höchsten Wohnkomfort. Bereits liebevoll möbliert, ermöglicht dieses Zuhause einen unmittelbaren Einzug.
Ein unbefristeter Mietvertrag mit einem zweijährigen Kündigungsausschluss bietet zusätzliche Sicherheit. Zudem besteht die Möglichkeit, das Haus gemäß den gesetzlichen Bestimmungen unterzuvermieten. Es wird eine Indexmiete abgeschlossen.
Diese Doppelhaushälfte fügt sich mit ihrem ansprechenden Design und den erlesenen Materialien perfekt in die exklusive Umgebung ein. Überzeugen Sie sich selbst vom besonderen Charme dieser Immobilie und vereinbaren Sie einen persönlichen Besichtigungstermin – wir freuen uns auf Sie!
Die Lage
Diese Immobilie befindet sich in Archsum, einem der ruhigeren und charmantesten Orte der Insel. Eingebettet in die idyllische Natur, bietet Archsum eine perfekte Balance zwischen Erholung und Erreichbarkeit. Geprägt von reetgedeckten Häusern und einer harmonischen Nachbarschaft, strahlt der Ort eine unvergleichliche Ruhe und Beschaulichkeit aus.
Die Umgebung zeichnet sich durch weitläufige Wiesen und Felder aus, die zu Spaziergängen und Fahrradtouren einladen. Gleichzeitig ist Archsum gut angebunden: Die benachbarten Orte wie Keitum oder Morsum sind schnell erreichbar, und Westerland liegt nur eine kurze Autofahrt entfernt.
Sylt bietet ein breites Spektrum an Freizeitmöglichkeiten: von erstklassigen Restaurants und Boutiquen bis hin zu weitläufigen Stränden und exklusiven Golfplätzen. Archsum selbst begeistert mit seiner authentischen und ursprünglichen Atmosphäre und ist ein idealer Rückzugsort für Menschen, die das Besondere suchen.
Dank der Kombination aus Naturnähe, Exklusivität und der ausgezeichneten Infrastruktur der Insel ist diese Lage eine perfekte Wahl für ein neues Zuhause oder eine Ferienresidenz.